Rovnou na obsah Rovnou na menu
Menu
Město Soběslav
MěstoSoběslav

Výběrové řízení na pronájem nebytových prostor

Rychlé občerstvení

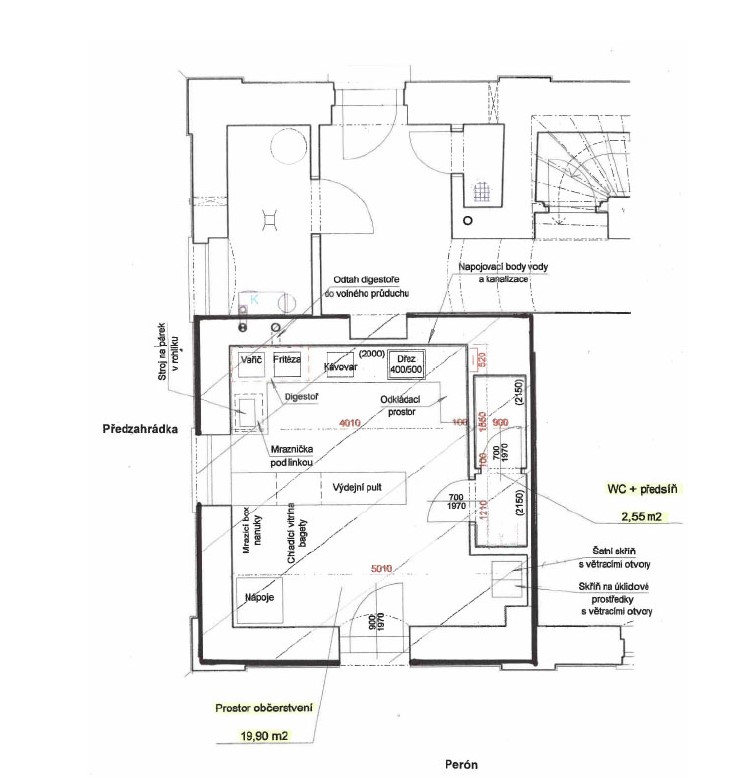
Město Soběslav vypisuje výběrové řízení na pronájem nebytových prostor ve výpravní budově v ulici Riegrova 264/5 za účelem realizace rychlého občerstvení. Nebytové prostory budou pronajaty od 1. 5. 2024 na dobu 5 let.

Podrobné informace naleznete v příloze.

Přílohy

Podrobnosti k výběrovému řízení - rychlé občerstvení

1 VŘ_rychle_obcerstveni.doc
Typ souboru: DOC dokument, Velikost: 295 kB
Datum vložení: 27. 2. 2024 10:03
Datum poslední aktualizace: 27. 2. 2024 12:25
Autor: Ing. Michaela Nováková

Úřad

Úřední hodiny

Městský úřad

 

Pondělí

7:00 - 11:00 a 11:30 - 17:00

Středa

7:00 - 11:00 a 11:30 - 17:00

Pátek

7:00 - 11:00 (pouze ODVV)

Konzultace

JUDr. Stanislav Hroch

konzultační a poradenské služby místním občanům na MěÚ Soběslav

Aktuální úřední dny jsou zveřejněny vždy v aktualitách

Městský úřad Soběslav

náměstí Republiky 59

3. patro,  velká zasedací místnost číslo dveří 318

telefon: 602 496 375

Návštěvnost

Návštěvnost:

Počítadlo přístupů

Užitečné informace

Kalendář

Duben2026
Po Út St Čt So Ne

Mobilní aplikace

Sledujte informace z našeho webu v mobilní aplikaci – V OBRAZE.

Informace od nás

Smart info

Dostávejte informace z našeho webu prostřednictvím SMS a e-mailů

Chci se zaregistrovat

Náměstí - kamera

Městské organizace