Rovnou na obsah Rovnou na menu
Menu
Město Soběslav
MěstoSoběslav

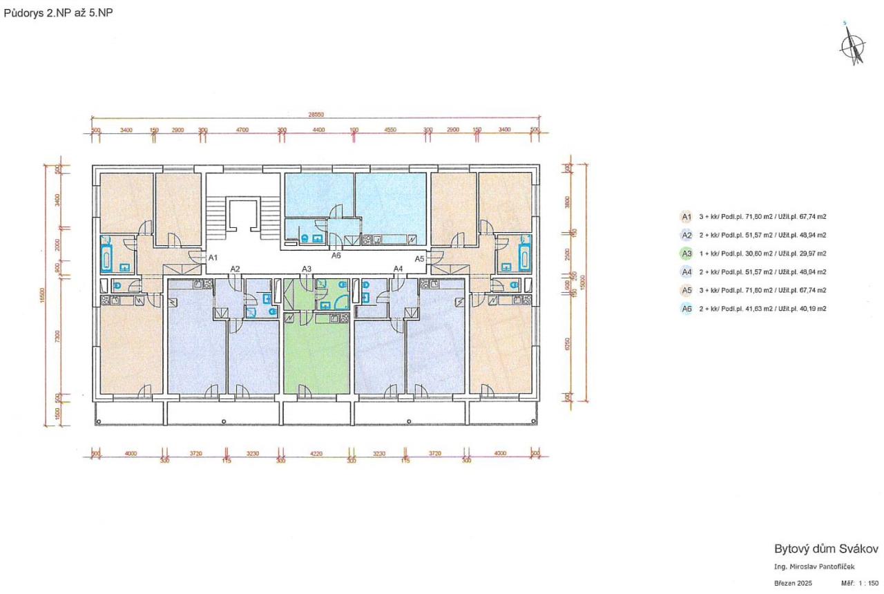
Bytový dům Svákov

Cílem je vybudování bytového domu na sídlišti Svákov s 25 bytovými jednotkami.

Záměr předpokládá realizaci bytového domu na sídlišti Svákov s 25 bytovými jednotkami o velikosti 1+kk, 2+kk a 3+kk. V 1. NP je umístěn nebytový prostor, kolárna, sušárna a sklepy pro jednotlivé bytové jednotky. Součástí studie je vybudování potřebných parkovacích míst v těsné blízkosti bytového domu.

Datum vložení: 7. 4. 2025 11:40
Datum poslední aktualizace: 7. 4. 2025 11:42
Autor: Bc. Lucie Nečasová

Město

Město Soběslav

Město Soběslav

Dokumenty

Střednědobý výhled rozpočtu

Střednědobý výhled rozpočtu

Dokumenty

Program rozvoje města

Program rozvoje města

Užitečné informace

Kalendář

Březen2026
Po Út St Čt So Ne

Mobilní aplikace

Sledujte informace z našeho webu v mobilní aplikaci – V OBRAZE.

Informace od nás

Smart info

Dostávejte informace z našeho webu prostřednictvím SMS a e-mailů

Chci se zaregistrovat

Náměstí - kamera

Městské organizace